宮崎市大塚町宮田 不動産 売り家 中古住宅 こゆプランニング不動産ローカル情報

R7.11月 価格変更 ¥799万→¥1,499万円へ

新着  物件番号 2868 中古住宅
トップページ 

売買ニュース

新着物件

掲載前

売買情報

売家情報売り家1

売り家2

郡部売家

土地情報

土地情報土地1

郡部土地

ボタン査定

会社案内

広告

戻る

アンケート

こゆプランニング
【宮崎市大塚町宮田 現況orリニュアル後 売り家 不動産】 宮崎不動産情報 宮崎 建物 住宅 土地 tate03 中古住宅 2868 外観写真n 売り家 こゆプランニング
概況図面、現況を優先します。
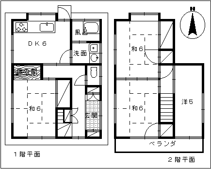
【宮崎市大塚町宮田 現況orリニュアル後 売り家 不動産】 宮崎不動産情報 宮崎 建物 住宅 土地 tate03 中古住宅 2868 平面図 売り家 こゆプランニング
【宮崎市大塚町宮田 現況orリニュアル後 売り家 不動産】 宮崎不動産情報 宮崎 建物 住宅 土地 tate03 中古住宅 2868 平面図元 売り家 こゆプランニング
内見の時は物件の確認と鍵の手配の為、事前に連絡をお願い致します。
所在地 宮崎市大塚町宮田 バス停 大塚町徒歩3分
価格 ¥1,499万円 消費税 込み
土地面積 98.65u 29.84坪 道 路 南6m
延床面積 75.33u 22.78坪 築 年 H9年11月新築
構 造 木造スレート瓦葺2階 階 数 2階建
タイプ 3DK 現 況 空家
電 気 水道 下 水 浄化槽
都ガス Pガス 水洗 ★WS
汲 取 排 水 電 話
給 湯 A C 駐車場 2台軽含む
取引態様 仲介 校 区 大塚小学校 大塚中学校
宮崎市大塚町にコンパクトな売家が出ました。お手頃価格です。10月末迄は現価格で売出します。
それ以降は、リニュアルして売出致します。価格も変更になります。専門業者によりリニュアル物件
になります。全国的に有名な業者です。実績も有りますので、完成後の仕上がりを見て購入もあり?
何方を選ぶかは、あなた次第です。先ずは、現状確認をされては如何でしょうか?必見!!
この機会に、是非こゆプランニングへ連絡を!
情報の入手の関係上、タイムラグに依り成約済みになる場合もありますのでご容赦頂きます。
システムキッチン  リビングルーム合成 
   
ユニットバス  トイレウォシュレット