宮崎市大字小松 中古 新築 住宅 こゆプランニング不動産ローカル情報

新着  物件番号 11734 中古売り住宅
トップページ 

売買ニュース

新着物件

掲載前

売買情報

売家情報売り家1

売り家2

郡部売家

土地情報

土地情報土地1

郡部土地

ボタン査定

会社案内

広告

戻る

アンケート

こゆプランニング
宮崎不動産情報 宮崎 建物 住宅 中古 新築 マンション tate56 宮崎市小松にステキな間取りのオール電化の2階建て売り家住宅情報 11734 外観写真  こゆプランニング不動産情報
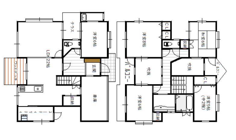
概況図面、現況を優先します。
宮崎不動産情報 宮崎 建物 住宅 中古 新築 マンション tate56 宮崎市小松にステキな間取りのオール電化の2階建て売り家住宅情報 11734 平面図  こゆプランニング不動産情報
宮崎不動産情報 宮崎 建物 住宅 中古 新築 マンション tate56 宮崎市小松にステキな間取りのオール電化の2階建て売り家住宅情報 11734 平面図元  こゆプランニング不動産情報
内見の時は物件の確認と鍵の手配の為、事前に連絡をお願い致します。
所在地 宮崎市大字小松 バス停 小松台団地徒歩5分
価格 ¥2,150万円 消費税
土地面積 228.95u 69.25坪 道 路 北6m西6m
延床面積 136.24u 41.21坪 築 年 H3年12月新築
構 造 木造スレート葺2階 階 数 2階建
タイプ 3LDK 現 況 空家
電 気 水 道 下 水
都ガス IH 水 洗 ★WS
汲 取 排 水 電 話
給 湯 A C 駐車場 2台可
取引態様 仲介 校 区 生目小学校 生目中学校
小松台ピュアタウンにオール電化住宅が売りに出ました。玄関とリビングが吹抜けで解放的空間が
広がっています。明るくゆったりとした生活が見込めます。キッチンには家事室があり、クローク、収納
も多数あり、家事が楽しくなる様な間取りとなっております。年式は古いですが、充分現在に適合してる
と思います。バス停も近く・大塚や桜ヶ丘の商業施設はもちろん!運動も生目の杜運動公園も近くて、
健康を考えれば好立地の物件と思われます。先ずは、内見の為にこゆプランニングに連絡を!!
0985-48-3371番へどうぞ!
情報の入手の関係上、タイムラグに依り成約済みになる場合もありますのでご容赦頂きます。
 門構え写真 現 勝手口へのスロープ写真 玄関写真 現
 宮崎不動産情報 宮崎 建物 住宅 中古 新築 マンション tate56 宮崎市小松にステキな間取りのオール電化の2階建て売り家住宅情報 11734 門構え  こゆプランニング不動産情報 宮崎不動産情報 宮崎 建物 住宅 中古 新築 マンション tate56 宮崎市小松にステキな間取りのオール電化の2階建て売り家住宅情報 11734 勝手口へのスロープ写真  こゆプランニング不動産情報 宮崎不動産情報 宮崎 建物 住宅 中古 新築 マンション tate56 宮崎市小松にステキな間取りのオール電化の2階建て売り家住宅情報 11734 玄関写真 現  こゆプランニング不動産情報
 シャンプードレッサー写真 現 風呂写真 現 トイレウォシュレット写真 現
 宮崎不動産情報 宮崎 建物 住宅 中古 新築 マンション tate56 宮崎市小松にステキな間取りのオール電化の2階建て売り家住宅情報 11734 シャンドレ写真 現  こゆプランニング不動産情報 宮崎不動産情報 宮崎 建物 住宅 中古 新築 マンション tate56 宮崎市小松にステキな間取りのオール電化の2階建て売り家住宅情報 11734 風呂写真 現  こゆプランニング不動産情報 宮崎不動産情報 宮崎 建物 住宅 中古 新築 マンション tate56 宮崎市小松にステキな間取りのオール電化の2階建て売り家住宅情報 11734 トイレウォシュレット写真 現  こゆプランニング不動産情報
リビングルーム写真 現 リビング吹抜け写真 玄関吹抜け写真 現
 宮崎不動産情報 宮崎 建物 住宅 中古 新築 マンション tate56 宮崎市小松にステキな間取りのオール電化の2階建て売り家住宅情報 11734 リビングルーム写真 現  こゆプランニング不動産情報 宮崎不動産情報 宮崎 建物 住宅 中古 新築 マンション tate56 宮崎市小松にステキな間取りのオール電化の2階建て売り家住宅情報 11734 リビング吹抜け写真  こゆプランニング不動産情報 宮崎不動産情報 宮崎 建物 住宅 中古 新築 マンション tate56 宮崎市小松にステキな間取りのオール電化の2階建て売り家住宅情報 11734 玄関吹抜け写真 現  こゆプランニング不動産情報
システムキッチンIH写真 階段写真 現 板張りバルコニー写真 現
 宮崎不動産情報 宮崎 建物 住宅 中古 新築 マンション tate56 宮崎市小松にステキな間取りのオール電化の2階建て売り家住宅情報 11734 システムキッチンIH写真 現  こゆプランニング不動産情報 宮崎不動産情報 宮崎 建物 住宅 中古 新築 マンション tate56 宮崎市小松にステキな間取りのオール電化の2階建て売り家住宅情報 11734 階段写真 現  こゆプランニング不動産情報  宮崎不動産情報 宮崎 建物 住宅 中古 新築 マンション tate56 宮崎市小松にステキな間取りのオール電化の2階建て売り家住宅情報 11734 板張りバルコニー写真 現  こゆプランニング不動産情報
ウッドデッキ写真 現 庭写真 現 2階よりの眺望写真
宮崎不動産情報 宮崎 建物 住宅 中古 新築 マンション tate56 宮崎市小松にステキな間取りのオール電化の2階建て売り家住宅情報 11734 ウッドデッキ写真 現  こゆプランニング不動産情報 宮崎不動産情報 宮崎 建物 住宅 中古 新築 マンション tate56 宮崎市小松にステキな間取りのオール電化の2階建て売り家住宅情報 11734 庭写真 現  こゆプランニング不動産情報 宮崎不動産情報 宮崎 建物 住宅 中古 新築 マンション tate56 宮崎市小松にステキな間取りのオール電化の2階建て売り家住宅情報 11734 2階よりの眺望写真  こゆプランニング不動産情報